Lernen ohne Wetterapp!

Flexible Schulräume zur Miete – modern & vielseitig nutzbar

Schön, dass Sie sich für unsere Räumlichkeiten interessieren!

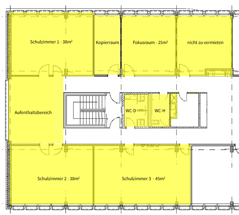
Das GIUVAULTA nutzt vier modern ausgestattete Schulzimmer und ein Lehrerzimmer im Bürohaus Schelmer, Felsenaustrasse 25, Chur, für die Berufsschule PrA Graubünden. Da der Schulbetrieb nur montags und dienstags stattfindet, stehen die Räume von Mittwoch bis Sonntag zur Vermietung zur Verfügung.

Ihre Vorteile auf einen Blick:

  • Flexible Nutzung: Mieten Sie einzelne Räume oder alle vier Schulzimmer – ganz nach Ihrem Bedarf.
  • Langfristige Vermietung möglich: Ideal z. B. für ein ganzes Schuljahr.
  • Moderne Ausstattung:
    • 6–10 Arbeitsplätze pro Raum
    • Lehrerpult, Whiteboard/Tafel
    • Digital Whiteboard & WLAN
    • Drucker (Nutzung separat verrechenbar)
  • Gute Erreichbarkeit mit ÖV, Parkplätze vorhanden

Preise & Details:

  • Fairer Mietpreis je nach Raumbedarf - auf Anfrage
  • Grundriss und Fotos der Räume finden Sie weiter unten auf dieser Seite

Interesse geweckt?

Kontaktieren Sie Michael Pethe für Besichtigungen, Preisdetails oder weitere Informationen:

Telefon: 081 650 11 12
E-Mail: michael.pethe@giuvaulta.ch